
大小: 420.3 MB
下载:134次
天正建筑t20
说明:安全下载是直接下载应用市场,用户下载后可自行搜索目标软件进行更高速,更安全的下载。
- 分 类:手机游戏
- 大 小: 420.3 MB
- 游戏ID:4e7c58b
- 说 明:天正建筑t20
- 提 示:自辨安全性
- 发 布:2022-08-08 07:12:00
手机扫码免费下载
纠错留言#天正建筑t20介绍
大家好,小狐狸小编来为大家解答天正建筑t20的下载地址。天正建筑t20,天正建筑t20v5.0教程视频很多人还找不到怎么下载,现在让我们一起来介绍下天正建筑t20,希望能帮助到你!
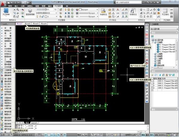
天正建筑t20是基于AutoCad制作的一款绘图软件,软件主要适用于建筑行业使用,以先进的建筑对象概念服务于建筑施工图设计和日照、节能分析应用,可以辅助建筑设计人员更加出色的完成图纸设计工作。KK下载站为您提供天正建筑t20 绿色最新版下载,软件已完成最新,可以免费激活使用,有需要的朋友可以下载使用哦!
天正建筑t20绿色最新版功能介绍
有效数据连通。1.【BIM导出】【BIM导入】命令,实现与Revit的双向对接。FileView选项板。1.整合天正文件绘制功能,方便图档交换;2.集成的状态栏和视图观察工具常用的切换,方便快速更新图形显示状态。3.天正图层管理器,采用标准的天正标准图层植入层管理器,加载图层更方便;4.图层编组器,方便对图层的管理和整体操作;5.【图层搜索】功能,可以与天正图层控制条交互,方便图层查询;6.显示【锁定层透明】,使锁定层更清楚地显示。7.【编组】功能,它可以对图中的对象进行分组,列表中显示的组名称,既可以对组对象进行整体操作,也可以把整组隐藏或显示出来,合并或解散。通用命令行。1.巧妙地结合命令行和画符号对话框,不占用绘图界面;2.通过图标按钮进行频繁的“正交”和“对象捕获”设置,修改捕获模式会更快。天正工具栏1.在工具栏中包含"平行"、"对齐"、"等间距"的命令,以便调整对象方向;2.“图案填空”、“彩色填空”、“墙柱填空”对话框,简化了操作过程,更快的填填。3.符合测绘规范和实际工程的天正注解系统。大小说明标签页。1.【快速标注】命令,可批量标注图中选定的所有工件尺寸;2.按“圆弧标注”命令,通过鼠标位置判断标注类型,准确标注;3.【双线标注】命令,可同时标上第二道总尺寸线;4.【二点标注】命令,可通过鼠标位置自动判别所要标注的墙体和门窗构件;5.命令【等价标注】,可自动计算;6.【取消尺寸】命令,不仅可以取消单个间隔,还可以设置删除大小;7.【尺寸等距】命令,用于将多道尺寸线垂直于尺寸线方向按等距调整位置。标记标签标签页。1.【设定坐标系】命令,用来调节世界座标系统的位置;2.用来确定场地坐标系的【场地红线】命令;3.【高程符号】条形图、插图选择清楚;4.【坐标标注】将符号的设定和绘制分开进行,绘图直观操作简单;5.命令支持使用“坐标标注”,以世界坐标系或场地座标为标准,分别标注。整体对话框风格和互动行为。1.对话框《画轴》和《轴网注》。2.对话框中“画轴网”上的“删除轴网”按钮,可对选定中心轴网进行过滤去除;3.“轴网标注”对话框中的“删除轴号”按钮,可对选定集中的轴号进行筛选并删除。[画墙]1.【画墙】对话框中独立玻璃幕墙对话框,可设置柱梁的产生规则;2.对话框中“尺寸拾取”功能,可以在图形中提取已有墙壁物体的相关信息;3.【画墙壁】对话框内的墙纹填充功能,可根据材料直接进行详图填充;4.【绘制墙壁】对话框中,在绘制墙壁时,可以同时产生绝缘线,并可选择保温线填充样式;5.“画墙”对话框可设置墙体的保温宽度是否按总墙宽计算;6.对话框中“画墙”材料,支持设置防火等级,细化墙体用途;7.对话框中“编辑墙”按钮,用于批量编辑天正墙对象;8.【画墙】对话框中的“删除墙”按钮,可对选定集中的墙进行过滤去除;9.对话框中的“替换”按钮,用来替换已经在图中插入的墙;0.用来迅速地将已经布置好的墙从选定的位置上中断,墙切开。最新特色[新门]与[新窗户]1.“新门”与“新窗”对话框中的尺寸拾取功能,可以将已有门窗对象的相关信息捡取;2.“新门”、“新窗”对话框可直接设置门窗材料;3.在"新门"和"新窗"对话框中,"编辑门"和"编辑窗口"用于批量编辑天正门窗对象;4.在“新门”和“新窗”对话框中,“删除门”和“删除窗”按钮可对选定集中的门窗进行过滤并删除。5.在“新门”和“新窗”对话框上点击翻转按钮,可将门窗直接按对话框中的方向布置,无须再选择打开方向;【标准柱】1.对话框中的尺寸选取功能,可以在图中提取已存在柱体对象的相关信息;2.【标准柱】对话框的柱状充填功能,可根据材料直接进行详图填充;3.对话框中“标准柱子”按钮,用于批量编辑一个天正柱对象;4.对话框中的“移除柱子”按钮,用于过滤选取集中的柱子以删除。
天正建筑t20绿色最新版软件特色
1.改进墙柱连接位置的相交处理和墙体线图案填充及保温的显示;改进墙体分段.幕墙转换.修墙角等相关功能;
2.门窗系统改进:新增智能插门窗.拾取图中已有门窗参数的功能;同编号门窗支持部分批量修改;优化凸窗对象;改进门窗自动编号规则和门窗检查命令;解决门窗打印问题;
3.完善天正注释系统:按新国标修改弧长标注;支持尺寸文字带引线和布局空间标注;新增楼梯标注.尺寸等距等功能;
5.轴号文字增加隐藏特性;增加批量标注坐标.标高对齐等功能;新增云线.引线平行的引出标注.非正交剖切符号的绘制;
5.解决图形导出.批量转旧的诸多问题,新增导出设置;
6.新增图块改名.长度统计.图纸比对等辅助绘图工具。
#Match Brawl截图